Ihr einfacher Wechsel zur passenden Marken-Webseite in Deutschland:
Es gibt keine Suchtreffer zu Ihrem Suchbegriff
flag_de Deutsch
gu-objektberatung-tuer-engineering-2-hero
gu-objektberatung-tuer-engineering-2-hero
Objektberatung

Tür-Engineering

Maßgeschneiderte Systemlösungen für Ihre Türen.

Ingenieur neben Tür, Icon für TürEngineering
Individuell. kostenfrei.

Individuell entwickelt – perfekt im Zusammenspiel
Unser Service rund um Ihre Türen

Wir erarbeiten für Sie maßgeschneiderte Systemlösungen für Ihre Türen, auf denen das Zusammenspiel aller Komponenten an einer Tür dargestellt wird. Nach Ihren Vorgaben erstellen wir Konzeptentwürfe mit Funktionsbeschreibungen. Dies ergänzt Ihre Türlisten um eine funktionale Übersicht. Unser kostenfreier Service gibt Ihnen Planungssicherheit und entlastet Sie im Tagesgeschäft.

Ihre Vorteile auf einen Blick

  • Reduziert unkalkulierbare Folgekosten für nachträgliche Änderungen
  • Entlastet Sie im Tagesgeschäft
  • Berücksichtigt kundenspezifische und gesetzliche Anforderungen

Sprechen Sie uns an. Gemeinsam erarbeiten wir die für Sie optimale Lösung!

Arbeitsbeispiele

Was können Sie von uns erwarten?

Untenstehende Beispiele geben Ihnen einen ersten Einblick unserer Unterstützung im Bereich Tür-Engineering. Selbstverstänglich planen wir für Sie die Tür individuell und konkret auf Ihre Bedürfnisse angepasst. 

Technische Zeichnung Holztür T30RS Fluchtweg mit Zutrittskontrolle Technische Übersicht Fluchttürsteuerung T30RS mit Online Zutrittskontrolle

Planungsziel Variante 1

Eine 1-flügelige Holztür mit Feuerschutzanforderungen im Zuge vom Fluchtweg soll im Regelfall bidirektional nur mittels Identifikation begangen werden können. Der Türzustand und der Verriegelungszustand sollen überwacht und in Echtzeit dokumentiert werden. Im Verschlusszustand soll die Tür jederzeit verriegelt sein. Die Tür soll nur im Gefahrenfall in Fluchtrichtung über die Panikfunktion und ohne Identifikation begehbar sein. Im Bedarfsfall soll die Fluchttürsteuerung zentral über die BMA ausgelöst werden können. Optional soll eine Fernöffnung, z.B. über eine Wechselsprechanlage, möglich sein.

Planungsziel Variante 2

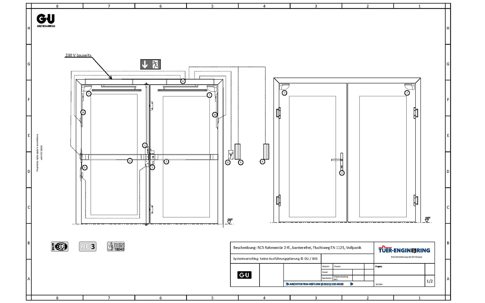
Eine 2-flügelige Rahmentür im Zuge vom Fluchtweg soll im Gefahrenfall in voller notwendiger Fluchtbreite begangen werden können. Dazu müssen beide Türflügel mit einem Handgriff zu öffnen sein. Da es sich um ein öffentliches Gebäude handelt wird der Fluchtweg nach EN 1125 mit Panikdruckstangen geplant. Beide Türflügel sollen automatisiert werden, um eine barrierefreie Begehung in beide Richtungen zu gewährleisten. Die automatische und barrierefreie Öffnung soll nur genutzt werden, wenn dazu barrierefreier Bedarf besteht. Im Regelfall soll die Tür zu Betriebszeiten in beide Richtungen händisch begangen werden. Die Tür hat erhöhte Sicherheitsanforderungen und soll RC3 Anforderungen erfüllen. Optional soll eine Fernöffnung, z.B. über eine Wechselsprechanlage, möglich sein.

Zeichnung RC3 Vollpaniktür barrierefrei Fluchttür Technische Beschreibung RC3 Rahmentür barrierefrei mit Fluchtweg
Frage- und Antwortsymbol, Icon für Kontakt
Kontakt

Beratung gewünscht?

Für weitere Informationen oder einer individuellen Abstimmung kontaktieren Sie uns unter: